Подготовка материала и рамы
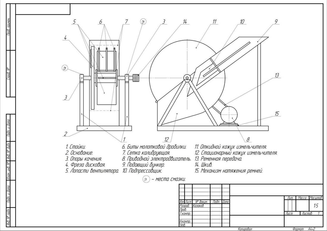
При изготовлении щепорезки требуется немало затрат. Если найти материал в хозяйстве, можно значительно сэкономить на создании шредера. Для изготовления рамы могут подойти такие виды металла:
- Равнополочный одинарный уголок, ширина которого 50−63 мм.
- 2 сваренных уголка коробочкой по 35 мм.
- Профиль 4 на 4 см.
- Швеллер, номер которого может быть от 6,5 до 10.
- Круглые трубы диаметром от 32 до 48 мм.
Электродвигатель крепят на листе из стали, толщина которого равна 10 мм, а размеры соответствуют расстоянию между отверстиями на кромке.
Натянуть ремень можно 2 способами:
- Отверстия для крепления двигателя делают продолговатыми. Они должны фиксироваться болтами.
- Плиту ставят с одной стороны на шарниры, а с другой — на шпильки. Это позволяет подтянуть ремень весом двигателя.
Для простого самодельного измельчителя веток для отопления понадобятся 20−25 приставочных шайб диаметром в 2 см и дисковых пил с твердосплавными наконечниками. Это поможет создать рабочую область в 8 см шириной. Снимая или добавляя плиты, можно с легкостью уменьшить или расширить её.
Крепить дисковые пилы вплотную друг к другу запрещено, ведь их зубья толще основания. Чтобы компенсировать разницу, ставят шайбы между пилами. Вал вытачивают из стального стержня на токарном станке. Перед этим необходимо выбрать 2 подшипника. Под их размер и будет вытачиваться вал. Кроме того, нужно изготовить корпус для подшипников с крепёжными кромками. Нередко их можно встретить в магазине или купить с рук.
Далее нарезают резьбу на валу для крепления пил. Вместо маховика применяют стальной круг толщиной 1 см. Также подойдёт шкив, взятой из сельхозтехники. В качестве контрножа может выступать опорная плита из стали. Её нужно вырезать из металла, толщина которого более 1 см.
Для сбора дробильной машины с дисками также потребуется:
- Круги из стали толщиной от 15 до 20 см. Их диаметр должен варьироваться от 40 до 50 см. Он зависит от мощности двигателя.
- Металл в листах на кожух толщиной более 5 мм.
- Металлический лист не толще 2 мм для сварки ёмкостей.
- Болты с гайками размером 12−16.
Особые рекомендации создания рамы:
Высоту подбирают под рост
Важно, чтобы закладывать сырье было удобно.
Ширина рамы не должна быть меньше 50 см, иначе конструкция не будет устойчивой.
Между стойками варят поперечины, чтобы придать основе жёсткость.
Для мобильности шредера к станине крепят колёса и ручку.
Двигатель лучше поставить в створе основы. При этом он не должен выпирать.
Сборка измельчителя
Чтобы устройство получилось надежным и безопасным в эксплуатации, при сборке придерживаются такого алгоритма:
- пилы нанизывают на вал, размежевывая их шайбами, и затягивают с 2-х боков гайками;
- смазав сепараторы подшипников, последние напрессовывают на вал, затем в наружные корпуса;
- узел прикручивают к раме с помощью болтов в заранее заготовленные отверстия;
- на концы вала устанавливают маховик и шкив, обеспечив надежное крепление;
- контрнож (стальная плита) ставится вплотную к зубьям пил;
- устанавливают главную передачу и мотор;
- надевают ремень, максимально его натянув.
Обратите внимание! Расположение пил относительно вала позволяет регулировать размер вылетаемой из дробилки щепы. Чем сильнее выступ режущих кромок, тем крупнее исходный материал
Бункер к раме следует приварить таким образом, чтобы подача веток относительно режущего инструмента осуществлялась под перпендикулярным углом.
Как самостоятельно собрать режущий элемент
Для изготовления фрезерного ножа вам понадобятся:
- дисковые пилы (10-12 шт.). Их количество может отличаться от указанного, как в меньшую, так и в большую сторону. Чем больше установлено дисков, тем более мелкая щепа получится на выходе;
- штанга резьбовая М20;
- подшипники (внутренний Ø 20 мм);
- плотный мягкий пластик для изготовления шайб-прокладок;
- шайбы и гайки для крепежа.
Собирают нож следующим образом:
- На шпильку (её диаметр 20 мм совпадает с отверстием пил) надеть диск.
- Между соседними дисками следует установить вырезанную из пластика шайбу. Она необходима, чтобы режущие кромки соседних пил (они шире, чем полотно диска) не цеплялись одна о другую.
- Крайние диски фиксируют шайбами и гайками. В результате у вас получится вал, с расположенными на нём дисковыми пилами. Осталось установить штангу с пилами на раму, при помощи подшипников, втулок и хомутов.
Из чего еще можно изготовить измельчитель
Различных вариантов создания садовых измельчителей своими руками много: от самых простых, позволяющих только перемалывать траву, до более конструктивно сложных, мощных агрегатов, предназначенных для древесины до 10 см толщиной. Соответственно, для практической реализации задуманного потребуются разные детали, различные затраты времени и средств.
Чтобы собрать оборудование для переработки растительных отходов, кроме рассмотренных вариантов старых или ненужных инструментов либо техники, можно воспользоваться следующими устройствами:
- дрелью либо перфоратором;
- старым рабочим пылесосом;
- ненужной электропилой;
- двигателем от насоса;
- бензиновым или электрическим мотоблоком;
- любым электромотором подходящей мощности.
Дрель с перфоратором, если с их помощью мельчить траву, вообще переделывать не надо. Достаточно сделать только насадку с лезвиями. Созданное устройство будет работать как блендер, измельчая мягкие стебли растений в емкости небольшими порциями.
Создание измельчителя с наборным пакетом дисковых пил
Измельчительный механизм таких шредеров состоит из дисковых пил, которые поочередно с разделительными шайбами насаживаются на вал. На каждом диске имеется множество зубьев, которые способны справиться даже с твердой древесиной. Поэтому мягкую траву, ботву и листья он переработает в считаные минуты. Когда зубья пил затупятся, их можно легко заменить новыми.
Чертеж измельчителя с наборным пакетом дисковых пил
Вал для измельчителя можно выточить на токарном станке или использовать готовый от коробки передач старого автомобиля. Расстояние между соседними пилами должно быть около 10 мм. Если промежуток будет меньшим, это снизит рабочую область измельчителя. Если выполнить больший зазор, это будет способствовать застреванию мелких веток.
Лучше воспользоваться электродвигателем, который при работе практически бесшумный и не выделяет в атмосферу вредные вещества. Для дробления грубого материала можно использовать мотоблок, который обладает большой мощностью. Двигатель следует размещать на движимой опоре, чтобы была возможность регулировать натяжение привода.
Раму под шредер можно сварить с помощью швеллеров, уголков или профилированных труб из металла. К основанию конструкции можно приварить упорный брус из металлопрофиля, который станет опорой для стеблей и веток при дроблении
При создании постаментов для подшипников важно не сделать перекос. Оси двигателя и вала должны быть в параллельных плоскостях
Пакет из 15 наборных пил на шпильке М20
Особое внимание заслуживает конструкция бункера. Его можно выполнить из листового металла
Емкость должна получиться достаточно прочной, чтобы выдерживать воздействие разлетающихся щепок от ветвей. С помощью движимой опорной пластины в теле бункера можно создать возможность регулирования размеров щепы. Так, для удобрения подходит более мелкие фрагменты, а для растопки пригодна более крупная щепа.
Размер приемного раструба должен быть больше длины рук, чтобы защитить их от повреждения. Эта также способствует возможности направлять ветки в измельчитель под удобным углом.
Такой садовый измельчитель веток и травы своими руками способен справиться как с мягкими отходами, так и с твердой толстой древесиной. Однако главной его проблемой является засорение пространства между пилами, которое нуждается в регулярной чистке.
Самодельный электрический измельчитель
Измельчитель своими руками можно изготовить при наличии необходимых элементов. Самым практичным считают веткодробилку состоящую из двух валов. Для изготовления создается чертеж, согласно которому производится сборка.
Первоначально подбирается необходимый материал и инструмент:
- электродвигатель номинальной мощностью до 4 кВт
- пару стальных пластин толщиной до 10 мм
- две шестерни из высокопрочной стали
- пару шкивов
- валы, закаленные и обработанные
- подшипники для надежного крепления валов
- непосредственно режущие лезвия из стали
- металлический корпус
- стальная труба необходимого диаметра
- набор гаечных ключей
- аппарат для сварки
- мощная дрель, либо перфоратор
Из квадратной заготовки вытачиваем валы с двух сторон. В центре сверлим отверстия для 4 ножей, в них нарезается резьба. Закругленные края вставляют в подшипники. Изготавливается барабан из 4 шпилек, и двух стальных пластин в которых прорезаются отверстия под подшипники.
Прочно закрепляют подшипники и шкивы на валу, с противоположной стороны устанавливают шестерни. На заранее подготовленную раму устанавливаем корпус с режущим механизмом и двигатель. Передача крутящего момента от привода будет производиться при помощи ремней через шкивы на валах двигателя и ножей.
Корпус приемника делают из листового металла, вырезанного в форме 4 трапеций. При помощи сварочного аппарата их скрепляют между собой в виде усеченной пирамиды. Короб соединяют с корпусом режущего механизма при помощи болтового соединения.
Садовый измельчитель из стиральной машины
Для сборки измельчителя веток своими руками необходимо провести следующие манипуляции:
- Из стиральной машины старого типа удаляется активатор.
- Заранее изготовленный нож устанавливают непосредственно на вал двигателя.
- Размер рабочего инструмента делают немного меньше диаметра барабана.
- В нижней части корпуса прорезается отверстие из которого будет высыпаться щепа.
- К отверстию присоединяется корпус.
Самодельный измельчитель из болгарки
Изготовление веткоизмельчителя своими руками из болгарки разделяют на несколько этапов:
- Берем бутыль 20 л, отрезаем нижнюю часть, а в верхней увеличиваем отверстие. Это будет приемник.
- С боку пропускаем ось устройства.
- Сверху на вал устанавливаем режущий элемент и надежно закрепляем всю конструкцию.
Дробилка из триммера
Для измельчителя веток изготовленного своими руками из садового триммера необходимо подготовить следующие необходимые элементы:
- емкость из пластика или металла объемом до 50 л
- несколько труб из металла диаметром до 20 мм
- стальную сеть площадью около 1 кв.м с мелкой ячейкой
- обрезок деревянной доски, либо фанеры
- необходимо приобрести металлические хомуты для креплений
- деревянные бруски и саморезы для их стяжки
- непосредственно сам триммер любой конструкции
В качестве вспомогательного инструмента рекомендуется подготовить:
- шуруповерт
- наковальня
- дрель
- электролобзик
- слесарный молоток
Для того, чтобы изготовить измельчитель необходимо следовать пошаговой инструкции:
- Первоначально подготавливают емкость веткоруба. Для этого на дне просверливают и вырезают отверстия в виде трапеций. Края обрабатываются.
- На дне закрепляется сетка при помощи брусков. Тем самым делается мембрана.
- Емкость располагают на небольшой высоте при помощи конструкции из труб.
- Двигатель триммера крепят на доске.
- Штангу устройства немного укорачивают и устанавливают также на основании с приводом.
- На торце штанги ставят режущий инструмент.
- Перед производством непосредственной работы необходимо провести испытания. Для измельчения веток различной толщины можно применять разные насадки.
Как сделать измельчитель веток своими руками: поэтапная инструкция
Порядок действия простой, сделать необходимо следующее:
- подобрать чертеж;
- приобрести или найти в саду, гараже, доме необходимые инструменты и материалы;
- изготовить ножи;
- соорудить кожух и куб для подачи веток или травы;
- установить все устройства на станину.
Ищем чертеж или составляем его самостоятельно
Рекомендуется использовать готовые чертежи, но, при этом, корректировать их с учетом размеров имеющихся деталей. В первую очередь это касается двигателя, поскольку от его габаритов будут зависеть размеры станины и схема размещения всех агрегатов.

Простейшая схема веткодробилки
Примером чертежа того, как сделать садовый измельчитель своими руками на базе электродвигателя может быть несколько вариантов схем:
- В интернете полно чертежей роторного устройства для утилизации веток. В качестве режущего механизма при этом, как правило, используются фрезы. Следует иметь в виду, что такой агрегат потребует достаточно мощного мотора, а фрезы будут расходным материалом, что удорожает его эксплуатацию. С другой стороны, такой измельчитель позволит утилизировать крупные ветки.
- Самым технически сложным с точки зрения изготовления является двухвалковый шредер. Однако он будет и самым мощным. С его помощью можно утилизировать ветки до 8 см. толщиной. Изготовить такое устройство самостоятельно сложно, поэтому рекомендуется привлекать специалистов.

Подробный чертеж для сооружения устройства
Готовим инструменты и материалы
Изготовление самодельного измельчителя требует времени, материалов и инструментов. Некоторые комплектующие могут “ударить по карману” в случае, если их нет в наличии, и они будут покупными. Экономический смысл в самостоятельной сборке устройства будет при условии, если оно будет дешевле в несколько раз по сравнению с ценой в магазине.

Некоторые комплектующие для измельчителя
В первую очередь необходимо озаботиться двигателем. В зависимости от толщины перерабатываемых веток подбирается мощность мотора. Двигатель мощностью до 1,5 кВт позволяют утилизировать траву и ветки толщиной до 2 см. Но самые популярные устройства комплектуются мотором мощность в 3-4 кВт. Они перерабатывают ветки диаметром до 5 см.
Для передачи усилия с двигателя на вал с режущим механизмом потребуются, как минимум, 2 шкива и подшипника. Также может возникнуть потребность и в шестеренках. Оптимальная скорость вращения режущего механизма – 1500 оборотов в минуту. Она обеспечит необходимую производительность и длительный период эксплуатации двигателя.
Также потребуются ножи, о чем уже говорилось выше ножи. Можно использовать дисковые пилы или фрезы. А еще допустимо изготовить режущие элементы самостоятельно, например, из фуганка. Во втором случае производительность и качество работы агрегата оставит желать лучшего.
Для станины необходимы трубы, а для сварки кожуха и бункера для подачи веток — листы металла.
Изготовление станины
Двигатель, бункер и режущий механизм крепятся на станину. Это — сварная конструкция из труб или металлических уголков. Ее размеры определяются на основании чертежа. Для изготовления потребуется болгарка и сварочный аппарат. При работе со сваркой необходимо соблюдать правила техники безопасности и надевать защитные очки.

Станина — основа будущего агрегата
Изготовление режущего механизма
Режущий механизм представляет собой вал, на который монтируются ножи. В их качестве можно использовать диск от болгарки, фрезы, дисковые пилы. Можно изготовить ножи из автомобильной рессоры. Для этого придется их заточить.

Несколько вариантов режущих элементов
Сборка агрегата
Порядок действий:
- Сбор режущего механизма. Ножи помещаются на вал, между ними прокладываются шайбы для того, чтобы исключить трение режущих элементов друг о друга. С обоих сторон вала ножи закрепляются гайками.
- Монтаж режущего механизма на станину. Для этого в станине проделываются отверстия, а сам механизм крепится на нее с помощью гаек и болтов. Предварительно следует напрессовать подшипники на вал.
- Установка электродвигателя и ременной или цепной передачи.
- Монтаж защитного кожуха, бункера и рукава для выброса щепы.
- Установка кнопки пуск/стоп.
Окончательная сборка, добавление недостающих деталей
На теперь уже наружной крышке сверху необходимо было вырезать отверстие для подачи веток в измельчитель. К тому же стоило добавить конструкции ножки. Отверстие было вырезано при помощи болгарки, а с наружной стороны на него я приварил трубу для дополнительной защиты оператора. Кстати, следует рассчитать её наклон, чтобы ветки попадали через неё точно на лепестки диска, о котором я скажу немного позднее.
Ножки были сварены из тех же обрезков арматуры, собранных по «углам». Для того чтобы их изготовить не нужно быть сварщиком-специалистом. Достаточно иметь минимальные навыки. Они состоят из двух частей, одна из которых приварена к крышке, а вторая к корпусу измельчителя, хотя кто-то может сделать иначе, на авторство я не претендую.

Когда все части были сварены, настало время установки главного компонента измельчителя веток – четырёхлепесткового диска для триммера. Получилось так, что мне пришлось отойти от намеченной цели сделать агрегат совершенно бесплатно. Диск для триммера всё же пришлось покупать. Можно было, конечно, что-то придумать, вроде самоделки из диска по дереву, однако я решил, что купить будет надёжнее.
Почему я выбрал для измельчителя именно такой диск? Просто однажды видел, как, расчищая противопожарную полосу недалеко от дачи, один из рабочих лихо срубал триммером небольшие деревца. Заинтересовавшись, я подошёл ближе, разговорились. Он-то мне и сказал, что молодые деревца – это ещё не всё. Такой диск способен на большее. Максимальная толщина дерева – длина лепестка. Лишь бы мощности привода хватило.

Как сделать измельчитель
Как сделать измельчитель травы своими руками, используя примитивный мотор и металлические дисковые пилы, расскажут краткая инструкция, чертеж.
Простая конструкция прибора делается на основе мотора и пил в форме диска. Для изготовления самоделки подбирается 12 дисковых полотен. Желательно, чтобы были насадки для зубьев из прочного материала, также потребуются стальные шайбы прокладки. При создании агрегата выдерживают расстояние между дисковыми пилами порядка 10 мм, иначе между зубьями будут оставаться мелкие веточки. На вал аккуратно надевается дисковой пакет, плотно фиксирующийся шайбами.
Важно! При этом очень важно, чтобы зубья на полотне не располагались ровно, небольшое смещение приветствуется. Можно разместить их хаотично, на качество агрегата это не влияет. Из уголков варится надежная рама, на дно которой помещается фундамент для монтируемого двигателя
Из уголков варится надежная рама, на дно которой помещается фундамент для монтируемого двигателя.
В подобной конструкции должна быть предусмотрена возможность перемещать мотор для регулирования привода. Формируются специальные постаменты, на них монтируется рабочий вал. При этом отслеживают, чтобы моторная ось и вал размещались параллельно. Формируют рабочий бункер, где будет проходить герметичный процесс растительного измельчения. Далее крепят металлическую опорную пластину, на которую фиксируется пассивный нож, выступающий в роли опоры для поступающих веток. Обязательным элементом конструкции будет отвод для подачи растительности, общая длина отвода должна быть достаточной.

Как сделать измельчитель
Прибор из стиральной машины
Из стиралки выходит отличный перерабатывающий агрегат. С этой целью понадобятся прочный корпус и один двигатель, отработанная пила и вместительное ведро, металлические элементы для крепления составляющих.
На заметку! Вначале в корпусе просверливается отверстие для отхода конечного сырья. На дне емкости при помощи металлической втулки монтируются ножи, которые формируются из отработанной пилы. Вблизи бокового контейнера устанавливается приемник.
Измельчитель из дрели
Элементарной моделью является самоделка из рабочей электрической дрели. Схема действия прибора напоминает овощерезку, для его создания пригодится обычный табурет. В нем просверливается отверстие в 12 мм. С оборотной стороны стула фиксируется корпус с удобным подшипником. Также на табурет фиксируется металлическое ведро с просверленным отверстием схожего диаметра. В просвет вводят прочный подшипник, на него монтируется вал с острыми ножами. Через патрон монтируется рабочая дрель при помощи быстрозажимного патрона.
В металлическое ведро поступает сырье для обработки, следующим этапом идет запуск дрели.
Внимание! Затачивать острие ножа необходимо только по одной стороне, заточенная плоскость при этом размещается внизу. Для этой модели подойдут правильные ножи ромбовидной формы со скошенным лезвием. Такая конструкция позволяет веткам свободно перемещаться по кромке лезвия, наслаиваться материал при этом не будет
Такая конструкция позволяет веткам свободно перемещаться по кромке лезвия, наслаиваться материал при этом не будет
Для этой модели подойдут правильные ножи ромбовидной формы со скошенным лезвием. Такая конструкция позволяет веткам свободно перемещаться по кромке лезвия, наслаиваться материал при этом не будет.
Простую самоделку для сада можно легко соорудить из любого материала. Для этого необходимы: использованный электродвигатель, простая круглая емкость, прочный лист стали, примитивная ножовка по дереву либо пильные диски от использованной газонокосилки для формирования режущего механизма. Простой чертеж можно найти на любом ресурсе в Интернете. Следуя подобным инструкциям, любой начинающий огородник сможет справиться с созданием простого измельчителя веток.
vote
Article Rating
Подготовка материалов
Для изготовления измельчителя потребуется довольно много металла. Чтобы сэкономить на материалах, можно их часть попробовать отыскать в домашнем хозяйстве. Для сборки рамы необходимы:
- Одинарный уголок с равными гранями. Ширина начинается от 50 мм.
- Квадратная труба или два уголка, которые сварены «коробкой». Размер грани — 35 мм.
- Квадратная труба с гранями в 40 мм.
- Швеллер номером от 6,5 до 10.
- Трубы, диаметр которых от 32 до 48 мм.
Не забываем про материалы, например, о швеллере
Для того чтобы закрепить электродвигатель, нужно взять лист металла толщиной 10 мм. Размеры должны соответствовать запроектированному расстоянию между отверстиями для монтажа с запасом 3-5 см. Чтобы натянуть ремень, можно использовать два вида устройств:
- Отверстия в металлическом листе выполняются не круглыми, а продолговатыми. Это необходимо для того, чтобы была возможность двигать раму и фиксировать болтами.
- Плита ставится на шарнир (с одной стороны). В таком случае под весом двигателя происходит натяжение ремня. С другой стороны плита фиксируется.
Для сборки самого простого измельчителя для дробления веток придётся купить 20-30 дисковых пил с закалёнными зубцами и такое же количество приставочных шайб (обычно используется диаметр в 20 мм). При таком количестве пил рабочая часть будет составлять около 8 см. В дальнейшем её можно расширять или уменьшать.
У дисковой пилы толщина зубцов немного больше, чем основание, поэтому нельзя крепить отдельные пилы впритык друг к другу. Между ними нужно устанавливать шайбы.
Вал вытачивается на станке из цельной стальной заготовки, но перед этим нужно подобрать два подшипника, под размер которых будет изготавливаться деталь. Необходимо изготовить корпусы для подшипников или же приобрести их в специализированном магазине.
Если же в конструкции шредера предусмотрены рубящие ножи, то основой может служить вал для фуганка, но нужно будет поменять диаметры осей, на которые прессуются подшипники. Рабочую часть лучше сделать размером до 10 см. Ножи обычно вытачиваются на станке из старых автомобильных рессор.
Материалы и инструменты
Большую часть составляющих шредера можно подобрать из запасов, имеющихся в домашнем хозяйстве. К примеру, рама прекрасно собирается из металлических уголков, швеллера и труб. Электродвигатель, как правило, покупается либо берется у мини-трактора. Используемая фреза должна быть обязательно с крупными зубцами, а дисковые пилы – обладать диаметром от 100 до 200 миллиметров. Если работа происходит с валом, то шестерни приобретаются в количестве пары штук, то же относится и к шкиву, а также к самому валу – их должно быть два. Ножи можно будет сделать из рессор автомобиля при наличии фрезерного станка.




Траворезка своими руками с приводом от болгарки
Tok2Z FORUMHOUSE
У меня на даче растут берёзы. С деревьев падает листва. Приходится её убирать, сжигать, забивать компостную яму. Листва долго гниёт. Я решил её измельчить. Для этого нужна траворезка. Посмотрел, что мастерят в интернете. Включил мозги и вот, что у меня получилось.
Вам понравился недорогой вариант садового измельчителя? Читайте статью дальше и узнайте, как сделать самоделку из болгарки и металлического бака. Tok2Z действовал так:
- Он подумал, чем крутить ножи измельчителя. Выбор невелик — поставить движок от стиральной машины, или купить электромотор. По словам пользователя — двигатель от стиралки слабый, а приобретать трёхфазник, и, переделывать его на одну фазу, не хотелось.
- Tok2Z купил на рынке, за 2 тыс. руб., старую болгарку, мощностью 2 кВт и ножи от газонокосилки за 700 руб. Заказал у токаря переходную втулку, потратив еще 500 руб.
- Сварил раму, поставил на неё оцинкованный бак от воды. Собрал конструкцию и включил траворезку.
Tok2Z
Обороты сумасшедшие. Кинул в бак лопату листьев, а их выдуло! Проверил, куда идёт поток. С краю бака воздух идёт вверх, а посередине засасывает. Вырезал кольцо из оцинковки и установил в центре бака. Бросил листву. Ножи её измельчили как надо, и она вылетела в нижнюю трубу.
Чтобы измельчить траву в совсем мелкую фракцию, пользователь установил перед «выхлопной» трубой уголок.
Диаметр трубы 10 см.
Траворезка измельчает листья прямо в компостную яму.
Сравните: куча листвы.
Измельчённая листва.
Tok2Z
Траворезка молотит всё — траву, листву. Иногда, вместе с листвой, попадается проволока. Камешки. Кусочки металла. Камни измельчитель крошит. Железо нет. Приходится выключать, искать мусор и выбрасывать его. Грохот при этом ужасный. Из недостатков — тонкие стенки бака. Пробивает. Буду переделывать. Сделаю бак из листа железа толщиной 1-2 мм.
Как изготовить садовый измельчитель веток своими руками чертежи
Чтобы собрать дробилку из набора дисковых пил, необходимо соблюдать следующий порядок работы:
- Наберите на валу пилы, не забыв проложить между ними специальные шайбы и хорошо затянуть их гайками.
- Напрессуйте все необходимые подшипники на вал, а потом и в наружные корпуса. Необходимо прикрутить их большими болтами к раме, перед этим сделав в ней специальные отверстия.
- На конце вала надежно установите маховик и шкив, закрепите их качественно.
- Около зубьев пил закрепите контрнож.
- Установите главную передачу и электрический двигатель, сделайте хорошую натяжку ремня.
Контрнож необходимо закреплять не при помощи сварки, а болтами через овально сделанные отверстия. Это поможет регулировать зазор между режущими зубьями пил и краем рабочей плиты
Важно не ошибиться с направлением вращения зубьев. Они обязаны набегать в направлении контрножа. При окончании сборки дробилки сделайте и закрепите специальный защитный кожух из металлического листа и большой бункер для отходов
Обязательных размеров для этих элементов не существует. Главным для них является безопасность и удобство в применении. Далее, подведите к дробилке провод для электрического питания, используя при этом автоматический выключатель с номинальным напряжением не менее 25 ампер
При окончании сборки дробилки сделайте и закрепите специальный защитный кожух из металлического листа и большой бункер для отходов. Обязательных размеров для этих элементов не существует. Главным для них является безопасность и удобство в применении. Далее, подведите к дробилке провод для электрического питания, используя при этом автоматический выключатель с номинальным напряжением не менее 25 ампер.
https://youtube.com/watch?v=-HzDATzFZf8
Изготовление самодельной ножевой дробилки делается также, но сначала необходимо поставить и закрепить ножи в специальных пазах вала. В этом процессе существует одна хитрость: чем больше режущая поверхность будет выступать за вал, тем крупнее щепка будет получаться. Сборочный бункер закрепляется так, чтобы ветки заходили под прямым углом к механизму резки.
Измельчитель веток своими руками
В сборке дискового измельчителя веток также нет больших тонкостей. Необходимо точно придерживаться чертежей или фото и видеоматериалов, а также качественно закреплять все элементы изделия. При изготовлении защитного кожуха стоит переднюю стенку, около которой происходит движение ножей, сделать наиболее толстой, а расстояние между ними поменьше. В противном случае маленькие ветки изделие будет затягивать внутрь, и наматывать на вал.

























































